Специфика работы электропроводки в бане
Электропроводка в любом помещении является необходимым элементом благоустройства. Однако, она же служит основным источником опасности и требует большого внимания и тщательности во время монтажа. Электричество в бане используется намного активнее, чем в жилых помещениях, поскольку в большинстве отделений отсутствуют окна. Остаться без освещения во время принятия банных процедур весьма опасно, так как в темноте легко получить травмы или ожоги.
Отдельную сложность и ответственность представляет монтаж проводов и элементов схемы электропитания. В большинстве случаев используется скрытый монтаж, позволяющий защитить электрику от воздействия влажности и высоких температур. При этом, после установки обшивки доступ к проводке затрудняется, поэтому нельзя допускать никаких ошибок или небрежностей. Иначе, как минимум, пропадёт контакт проводов, а в самом сложном случае возникнет пожар. Отделка бани, как правило, производится из древесины и других горючих материалов, поэтому необходимо свести риск к минимуму.
Особое внимание необходимо уделять защите пользователей от контактов с электрическим током. Если в сауне используются электронагреватели, понадобится грамотно обустроенный заземляющий контур и автоматы отключения питания (УЗО). Поскольку проводка в бане и парилке работает в сложных условиях, выбирают специальные марки кабеля с двойной изоляцией и достаточным сечением.
Требования ПУЭ
Монтаж проводки выполняют в соответствии с требованиями ПУЭ 7 (актуальной на сегодня редакции правил устройства электроустановок). Кроме того, должны соблюдаться нормы ГОСТ Р 50571.12-96 (раздел, касающийся помещений, где расположены нагреватели для саун).
Используется скрытый или открытый способ прокладки проводов. Эти понятия не следует путать со скрытым и открытым монтажом, когда провода размещают или под обшивкой, или над ней. В данном случае имеется в виду прокладка кабеля в штробе бетонной или кирпичной стены, или на поверхности несущей плоскости с соблюдением заданных условий.
Проводка, установленная в штробе, безопасна и надёжна Источник kromvel.net
Все требования, которым должна соответствовать электропроводка в бане и парилке, подробно изложены в ПУЭ и ГОСТ. Основные положения:
- Обеспечить всем проводам негорючую защиту. Обычно для этого используют металлическую трубу (гибкий шланг). Требование обусловлено наличием влаги и конденсата, а также пожароопасностью стен или обшивки бани.
- Для отсечки провода от стены из горючего материала (древесины или обшивки из горючего материала) используют негорючую подкладку. Чаще всего, устанавливают металлическую полосу, ширина которой на 20 мм больше диаметра кабеля (по 100 с обеих сторон).
- Электрощит должен быть оснащён УЗО с током срабатывания не более 30 мА (ток не отпускания). Рекомендуемым значением является 10 мА.
- Не следует устанавливать выключатели и розетки в парилке или помывочном отделении. Класс их защиты должен быть не менее IP-44 (с защитными крышками), а для светильников необходим класс защиты IP-54.
- Рекомендуется выбирать специальный кабель для сауны, термостойкий, с двойной изоляцией и тремя медными жилами (фаза, рабочий ноль и заземляющий провод).
- Кабель марки ВВГнг-LS, оптимальный вариант для монтажа электрики в бане
- Прокладка кабеля над печью запрещена. Проход сквозь стену делается в металлической гильзе. Все соединения клеммные, обжимные или сварные.
- Необходимо организовать заземление. Кроме этого, настоятельно рекомендуется сделать молниезащиту.
Это лишь базовые правила, действительные для всех видов банных помещений. Перед началом монтажа электропроводки следует уточнить, насколько имеющийся план работ соответствует действующим требованиям и исправить обнаруженные ошибки.
Виды электропроводки
Важно учесть, что службы энергоснабжения выдают разрешение на подключение до 15 кВт на один земельный участок. При прокладке кабеля к бане необходимо правильно рассчитать общую мощность потребления, чтобы не возникало превышения указанной допустимой нормы. В случае завышенного показателя придется получить разрешение.
Перед монтажом электропроводки в бане рекомендуется обратиться в РЭС и получить консультацию специалистов.
Выделяют несколько типов проводок.
По месту расположения кабеля
Проводка бывает подземной и воздушной. Разберем особенности применения каждой из них.
Подземный ввод
Этот способ наиболее надёжный, но бывают случаи, когда он не вполне уместен. Всё зависит от того, в каком месте будет располагаться баня и получится ли к ней прокопать траншею.
Давайте для начала рассмотрим все преимущества подземного ввода:
- Кабель, проложенный в земле, в течение всего срока эксплуатации не будет подвергаться ни сильным ветрам, ни атмосферным осадкам, ни воздействию резких перепадов температуры.
- В случае если произойдёт короткое замыкание и возникнет электрическая дуга, подземный кабельный ввод гарантирует, что имущество и люди при этом не пострадают.
- Воздушный ввод такой гарантии не даёт, возгорание может перейти на деревянную постройку. Так что пожарная безопасность – это самое главное преимущество прокладки ввода в земле.
- Немаловажный фактор в том, что не нарушается архитектурный стиль и внешний вид участка. Вся коммуникация спрятана в земле, никакие троса и провода не портят общую картину.
- Если вы проживаете в загородном доме не постоянно, то есть вероятность воровства. К сожалению, такой факт пока возможен, находятся умельцы воровать провода и кабели, проложенные по воздуху. Подземный ввод вряд ли кто-то решится выкапывать. В этом ещё одно немаловажное его преимущество.
Однако этот метод имеет и свои недостатки. Вам придётся выкопать траншею. Будете делать это сами – потратите кучу времени и сил, станете нанимать людей – последуют немалые денежные затраты. К тому же, чтобы проводить земляные работы, потребуется согласование с различными организациями, у которых могут проходить по территории вашего участка коммуникации (электрические кабели, водопроводные или газовые трубы, линии связи).
И ещё один немаловажный нюанс. Земля тоже является средой не вполне благополучной, можно даже сказать агрессивной. Из-за химического состава почвы могут возникать процессы коррозии, вследствие чего кабельная оболочка станет приходить в негодность. Своё негативное воздействие могут оказывать корни деревьев, микроорганизмы и грызуны, обитающие в земле, плохо сказывается влияние и грунтовых вод. Так что обязательно, перед тем как провести кабельный ввод в баню, укладывайте его не прямо в вырытую траншею, а сначала в пластиковой либо металлической трубе.
Наилучшим вариантом для подземного ввода будет кабель марки ВБбШв сечением 10-16 мм2. Он недешёвый, цена порядка 200 рублей за метр, но обладает прочностью и надёжностью. Четыре жилы медного исполнения, помимо того что находятся в изоляционной оболочке, ещё имеют стальную оплётку.
Траншею выкапывайте на глубину не менее 0,7 м, на дно насыпьте слой песка в 10 см. Когда проложите трубу с кабелем, сверху также укройте песчаным слоем, и только потом засыпайте грунтом.
Воздушный ввод
Этот вариант считается более дешёвым в плане материальных и физических затрат. Одно то, что не нужно рыть глубокую траншею, уже экономит силы, деньги и время.
Воздушный ввод менее долговечный, потому что подвержен механическим повреждениям во время сильных порывов ветра.
Вам понадобится натянуть провод или кабель от домостроения до бани. Сразу хотелось бы предупредить, если дом расположен в одной части участка, а баня совсем в противоположном, то, скорее всего, такой вариант будет не рациональным из-за большого расстояния между ними. Провод будет подвергаться очень большим механическим нагрузкам и может разрываться под собственным весом. Не станете же вы монтировать ещё несколько дополнительных опор, это накладно и не слишком красиво для территории.
Если расстояние между домом и баней менее 20 м, то воздушный ввод вполне приемлем. В этом случае алгоритм работ будет выглядеть следующим образом:
- В стенах дома и бани просверлите отверстия по диаметру кабеля. В них необходимо будет вмонтировать кусок металлической трубы или специальной пластиковой гофры.
- Рядом с просверленными отверстиями установите кронштейны, на которых закрепите изоляторы.
- Между этими двумя изоляторами натяните стальной трос.
- К тросу при помощи пластиковых или металлических хомутов закрепите кабель. Заведите его в подготовленные отверстия. И теперь останется его подключить. В распределительном щитке, находящемся в доме, надо установить отдельный автомат для бани, к его выходящим контактам и следует подсоединить этот кабель. В банном распредщитке кабель подсоединяется к вводному общему автомату.
Как видите, электромонтаж воздушного ввода не сложный, но надо будет учесть некоторые нюансы:
- Места, где кабель выходит из дома и входит в баню, следует герметизировать. После того, как затяните его в трубы, всё оставшееся пространство заделайте монтажной пеной либо утрамбуйте минеральной негорючей ватой.
- Обеспечьте достаточную натяжку стального троса.
- На пути прохождения кабеля не должно быть никаких других подсобных строений, высоких кустов или деревьев.
- Расстояние от земли до проводника должно быть больше 3,5 м.
- Не натягивайте кабель слишком сильно, это не струна, крепите его к стальному тросу свободно.
Самый лучший вариант – использовать для воздушного ввода провод с маркировкой СИП (самонесущий изолированный провод). У него есть некая конструктивная особенность, помимо токопроводящих алюминиевых жил под оболочкой имеется стальной трос.
То есть при использовании такого провода вам не нужно будет натягивать дополнительный трос для крепежа.
Ещё одно преимущество СИП, его изоляционная оболочка делается из материалов, которые хорошо выдерживают атмосферные осадки и солнечные лучи.
Не исключён вариант, что воздушный ввод на баню будет монтироваться от магистральной линии электропередачи. Это может быть в том случае, когда банное помещение расположено поблизости такой линии и целесообразнее тянуть ввод от неё, чем от дома. Для этого потребуется специальное разрешение и проект от энергоснабжающей организации, а также установка прибора учёта электроэнергии в банном распредщитке.
По способу прокладки кабеля
Делится на открытую и скрытую. Нюансы каждого типа разберем ниже.
Открытая
Подводить так кабель рекомендуется в каркасных (из деревянного бруса), бревенчатых банях, чтобы можно было быстро обнаружить неисправность и предотвратить возгорание.
Плюсы открытого монтажа:
- Разводка электропроводов находится перед глазами владельцев, что позволяет своевременно отреагировать на замыкание или другую поломку.
- Удобно проводить ремонт отдельных участков проводки.
Чтобы провода вписывались в дизайн помещения, их часто маскируют в декоративные оболочки.
Под открытую электропроводку используют кабели с двойной защитой.
Прокладывая кабель, от потолка нужно сделать отступ минимум 20 см и более.
Проводка в парилке крепится под потолком с помощью роликовых изоляторов, в душевой используются кабельные каналы. При необходимости провод пропускают через одну комнату в другую, вставив в высверленное отверстие стальною гильзу и потом кабель.
Такой провод удобно сразу завести в светильник.
Для открытого электромонтажа бани кабель укладывается внутрь металлической, гофрированной трубы, пластикового короба. Эта оболочка не горит, а только плавится под действием огня.
Разводку проводов в разные комнаты лучше всего делать через чердак.
Использовать проводники в виниловом, резиновом переплете запрещено.
При установке такого электрооборудования, как стиральная машина или бойлер, рекомендуется под каждую единицу ставить отдельный автомат.
Скрытая
Применяется для электрификации бань из кирпича, пеноблока, газобетона.
В стенах выдалбливают целые каналы, в которых потом будут укладывать и скрывать кабель. Каналы изолируют асбестом.
Большой плюс ‒ проводка незаметна и не портит общий вид помещения.
Подходит для укладки проводки на этапе возведения постройки.
Минус ‒ для замены или ремонта кабеля придется долбить стены и повторно выполнять внутреннюю отделку помещения.
Составляем схему
Для составления схемы необходимо составить общий план помещений и начертить отдельные элементы (стены или потолки, на которые будет устанавливаться электропроводка в бане. В первую очередь размещают розетки и выключатели. Руководствуясь требованиями ПУЭ и соображениями удобства пользования. В помывочном и парильном отделениях эти элементы не используются, ограничиваются только осветительными приборами.
Распределительный щит размещают неподалёку от входа, обычно в тамбуре. Необходимо обеспечить свободный доступ к главному рубильнику (автомату), чтобы в случае необходимости можно было быстро обесточить помещение или отдельные его части.
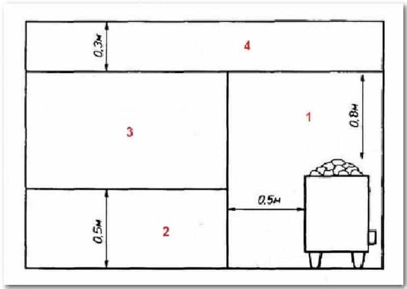
Согласно ГОСТ Р 50571.12-96, проводка в парилке не должна находиться ближе, чем за 80 см от печи или дымохода. Само помещение делится на 4 зоны, из которых самой безопасной считается участок 0,5 м от пола и столько же от печи. Здесь отсутствуют ограничения по теплостойкости оборудования и проводки. Однако, учитывая, что в парилке используют только осветительные приборы, необходимо руководствоваться требованиями для третьей и четвертой зон:
- зона 3 – участок 0,5 м от пола и 0,3 м от потолка, расстояние от печи – 0,5 м;
- зона 4 – вся площадь потолочного участка помещения на расстоянии 0,3 м от перекрытия или потолочной обшивки.
Для третьей зоны необходимо, чтобы изоляция проводки выдерживала нагрев не менее 170°. Если используется оборудование регулировки температуры, его предел нагрева должен составлять не менее 125°. В четвертой зоне изоляция должна выдерживать не менее 170°, а рекомендуемый предел – 200°.
Подбор марки провода, элементов электрики
Условия работы кабеля в парилке весьма сложные. Для монтажа необходим качественный кабель для бани, термостойкий, с медными жилами. Подойдут как одножильные, так и многожильные марки, но второй тип считается более предпочтительным. Рекомендуется использовать следующие разновидности:
- РГКМ;
- ПРКА;
- ПРКС;
- ПВКВ.
Это марки многожильного медного провода, выдерживающего нагрев изоляции до 180°. Кроме этого, подойдёт одно- и многожильный провод ПМТК (допустимый нагрев до 200°) или импортный кабель OLFLEX HEAT 205 (до 200°).
Для остальных помещений подойдёт кабель ВВГнг-LS, или его немецкий аналог NYM.
Кабель NYM, аналог российского ВВГнг-LS
Сечение рассчитывается исходя из суммарной мощности электроприборов плюс 20-30 % запас прочности.
Пример расчёта:
В комнате отдыха используются две лампы по 100 Вт, электрический чайник 1 кВт, тёплый пол 4 кВт. Суммарная мощность всех потребителей:
0,1 + 0,1 + 1 + 4 = 5,2 кВт.
Прибавляем запас мощности и получаем 6,24 кВт. Теперь надо определить максимальную силу тока, для чего следует разделить мощность на напряжение:
5200 Вт /220 В = 23,6 А. Для такого значения подойдёт медный провод сечением 3 мм (табличное значение). Можно пойти другим путём – использовать онлайн-калькулятор, который за пару секунд выдаст требуемое значение. По запросу находится много подобных ресурсов. В окошечки программы вставляют собственные значения, и получают результат. Рекомендуется продублировать расчёт на двух или трёх калькуляторах, чтобы исключить возможность ошибки.
Розетки и выключатели также подбирают исходя из мощности приборов и светильников. Для холодильника достаточно розеток на 10 А, а для электрического водонагревателя понадобятся розетки на 16 или 24 А.
Для комнат, не относящихся к категории влажных помещений, требования могут быть снижены, если они отделены от влажных помещений. Однако, вся электрика в бане подчиняется требованиям ПУЭ, поэтому проще использовать однотипные устройства.
Для парилки
Требованиями ГОСТ Р 50571.12-96 устанавливается такое разделение парилки на зоны:


Рис. 2: разделение парилок по зонам
Посмотрите на рисунок, все зоны отстраиваются в соответствии с местом расположения печки, хоть электрической, хоть твердотопливной. По отношению к прокладке кабеля проводки и установке другого оборудования эти зоны имеют такие требования:
- Первая предназначена исключительно для печи, если это электрокаменка, то и проводки для ее подключения;
- Вторая считается самой лояльной в части требований к проводке, для нее не предусматриваются никакие нормы;
- Для третей зоны предъявляются требования к оборудованию, которое должно нормально выдерживать температуру в 125°С и более, а проводка 170°С и более;
- В четвертую зону можно установить только светильники, датчики и регуляторы, но их проводка подбирается, как и для предыдущей зоны бани.
Для внутренней электропроводки в парилке должны использоваться термоустойчивые кабели, к примеру, гибкие медные РКГМ, ПВКВ, ПРКС или ПМТК.
Светильники в парилке должны иметь металлический корпус, к которому подводится заземление, герметичный стеклянный плафон со степенью защиты не ниже IP24. Не следует выбирать для подключения светильников модели с пластиковым корпусом или деталями, так как они могут расплавиться и деформироваться, из-за чего влага проникнет внутрь.


Рис. 3: светильник для парной
Для предбанника, раздевалки, комнаты для отдыха
Эти помещения характеризуются куда менее жесткими требованиями к месту расположения и характеристикам проводки. Но и в них должны соблюдаться все требования ПУЭ, предъявляемые к саунам.
Приборы освещения, также лучше использовать герметичные со степенью защиты не менее IP24, но можно применять и модели с полимерным корпусом или из оргстекла, так как температура в этих помещениях значительно ниже. Для проводки вполне подойдут провода марки ВВГнг-LS. Розетки должны иметь защитное запорное устройство, предотвращающее свободное проникновение влаги из окружающей среды.
Особенности прокладки кабеля в зависимости от материала бани
Рекомендуется учесть следующие требования пожарной безопасности:
- От распределительного щита должен идти только целый провод. Никаких кусков, промежуточного крепежа быть не может.
- Проводить кабель прямо над печкой запрещено.
- При проводке рекомендуется применять защитное зануление.
- Жилы проводов между собой соединяют пайкой или сваркой. Скрутки недопустимы.
- Кабель не должен проходить рядом с окнами, дверьми, отопительными батареями.
- При установке бойлера, стиральной машины обязательно предусматривается заземление.
- Не используются проводники в металлических оболочках.
- Разводить кабели от распределительной коробки можно только строго горизонтально или вертикально.
В парной не должны стоять розетки, выключатели ‒ это прямая угроза здоровью и жизни. Их переносят в раздевалку, комнату отдыха.
Разберем нюансы укладки проводки в русских банях из разного материала.
В кирпичной
В кирпичных строениях применяется скрытый способ монтажа проводки. В стенах выдалбливаются каналы, в которые укладывается кабель и маскируется слоем штукатурки. Процесс трудозатратен, но пожаробезопасен.
Минус заключается в том, что, чтобы выявить поломку, придется портить отделку.
В деревянной
В саунах из свежего сруба, бруса провода укладываются открытым способом. Под провода укладывают пластины из асбеста (толщина от 0,3 мм). Если будет поврежден кабель, пластина защитит от возгорания деревянное покрытие.
Нельзя укладывать кабеля внутрь пластиковых труб. Запрещено укладывать кабель под полом или между перекрытиями. Все провода могут идти сверху стены. Для маскировки можно использовать кабель-канал под цвет отделки помещения, но электрики советуют избегать таких решений.
В бане из блоков
В банях из пенобетона, газобетона, шлакоблока укладка проводки выполняется скрытым способом аналогично такому в кирпичных строениях.
Как подобрать сечение кабелей и защитной арматуры
Как это делается и зачем это нужно? Дело в том, что все кабели обозначаются по сечению жил, а розетки, выключатели и защитная арматура по максимальной силе тока.
Мощность электрических приборов определяется по формуле
P = I × U,
где P – мощность, I – сила тока, U – напряжение.
Соответственно, сила тока, протекающая в приборе, потребляющим максимальную мощность, определяется по формуле
I = P / U
Напряжение в бане в большинстве случаев 220 В. Суммируйте мощность всех приборов и определите максимальную силу тока. Далее по таблице с учетом наших рекомендаций подберите сечение кабелей.

Варианты размещения светильников в бане
Если все вышеописанные советы имеют обязательный характер, то конкретные места размещения светильников носят лишь рекомендательный.
Помещение
Рекомендации по расположению светильников
Парилка
Одно из самых маленьких помещений бани, в большинстве случаев достаточно одного светильника. Размещайте его в таких местах, чтобы случайно не повредить во время принятия водных процедур. Запрещается монтировать светильники близко от печки или дымохода. Настоятельно рекомендуем защитить светильник декоративным ограждением из дерева – исключается вероятность ожогов конечностей. Само собой разумеется, что степень защиты корпуса должна соответствовать условиям эксплуатации
Выключатель нужно монтировать у входа в парную с внешней стороны, удобно его разместить сразу у двери.
Душевая
Освещение должно быть более ярким, светильник нужно располагать на таком расстоянии, чтобы на них не попадали струи воды из душа.
Предбанник
Размещение произвольное, главное внимание следует обращать на дизайн помещения. Как правило, здесь устанавливают розетки для подключения различных электрических отопительных приборов.
Комната отдыха
Здесь никаких особых ограничений сточки зрения безопасности не существует
Где вам нравится или где подсказывает дизайнер – там и устанавливайте. Размеры, виды лампочки и их мощность зависят только от пожеланий владельца бани.
Какое напряжение выбрать для светильников
Государственные стандарты не запрещают подключать светильники во всех помещениях бани к напряжению 220 В, но можно встретить рекомендации устанавливать для них понижающие трансформаторы на 36 В или 12 В. По этому поводу можно сказать следующее. Если электропроводка имеет качественные УЗО (устройства защиты оборудования), система заземления отвечает требованиям ПУЭ – безопасность гарантируется. А если вы еще сделаете СУП (систему выравнивания потенциалов), то ни один самый строгий проверяющий не сможет найти нарушений.
Понижающий трансформатор 220/36 вольт
Не убедились или панически боитесь высокого напряжения? Нет проблем, приобретайте и устанавливайте для освещения любой понижающий трансформатор. Только имейте в виду, что в продаже довольно трудно найти светильники, рассчитанные на 12 В или 36 В, а если они и есть, то их дизайнерские характеристики очень далеки от совершенства.
Модные тренды освещения бани
Светодиодная подсветка
В сауне создан эффект звездного неба
Для придания бане индивидуальной эксклюзивности часто используется декоративная подсветка. Для парных применяются оптоволоконные устройства. Сам осветительный прибор размещен за пределами парной, свет в помещение подается оптическими волокнами. Удовольствие очень дорогое, но красота этого стоит. Такая подсветка может устанавливаться в любом месте, от потолка и до пола. Светодиоды не занимают много места, с их помощью можно создавать различные фигуры и орнаменты.
Распределительный щиток и расчёт нагрузок
Вся электропроводка разводится в бане от распределительного щита. При выборе места его монтажа надо соблюсти несколько правил:
- К щитку всегда должен иметься свободный подход.
- В помещении, где располагается щиток, необходимо обеспечить достаточное освещение.
- Также это место должно проветриваться.
- Запрещено располагать щитки в парилке или в других пожароопасных помещениях, чаще всего их монтируют в предбанниках либо комнатах отдыха.
В распределительном щитке должны быть смонтированы вводной автомат защитного отключения и отходящие автоматические выключатели для отдельных потребителей электроэнергии.
Чтобы выбрать мощность вводного автомата, необходимо знать общую нагрузку. Сложите номинальную мощность всех задействованных в бане электроприборов, не забудьте прибавить осветительную нагрузку. Полученную цифру поделите на величину напряжения. Например, у вас получилась мощность 5000 ВА, разделите полученную цифру на 220 В, и получите 22,72 А. Выбирайте автомат с небольшим запасом, вполне подойдёт аппарат на 25 А. По такому же принципу рассчитайте мощность отходящих автоматов.
Перед тем, как сделать проводку в бане, составьте принципиальную схему электроснабжения. На ней должны быть отображены все основные потребители электрической энергии:
- Электрокаменка.
- Часто устанавливают тепловую пушку для сушки помещений.
- Подогреваемый при помощи электричества пол.
- Насос.
- Электроизмерители влажности и температуры.
- Возможно, у вас там будет находиться стиральная машинка.
- Электрический чайник и фен.
- Водонагреватель.
- Подсветка бассейна.
- Холодильник для прохладительных напитков.
- Телевизор, музыкальный центр.
- СПА-оборудование.
В распределительном щитке каждому автомату присвойте порядковый номер и как-то его наметьте (напишите маркером либо приклейте бумажку с номером). На дверце распределительного щитка наклей те список автоматов с порядковым номером и помещением, которое он питает.
Приблизительно это должно выглядеть так:
- 1 – печь-каменка;
- 2 – парная;
- 3 – моечная;
- 4 – раздевалка;
- 5 – бассейн;
- 6 – комната отдыха.
Обязательно помимо автоматов в распределительном щитке должны быть смонтированы устройства защитного отключения (УЗО). В случае контакта электропотребителя с водой они сработают и отключат питание.
Пошаговая инструкция по монтажу внутренней проводки
Проводка в бане и парилке будет запитана от входного распределительного щитка. Главное в этом вопросе – соблюдать технологию монтажа и требования в соответствии с ПУЭ.
Установка электрического щитка
Вся энергетическая система банного сооружения будет запитываться именно от этого устройства – электрощитка.
В процессе его установки нужно соблюдать некоторые требования и правила, в том числе о месторасположении:
- Необходимо обеспечить беспрепятственный доступ к электрическому щитку;
- Ни при каких обстоятельствах не размещать щиток в парной или других помещениях с высокой опасностью возгорания;
- Помещение, в котором будет располагаться щиток, должно хорошо проветриваться и освещаться.
В большинстве случаев щиток располагают в комнате отдыха, поскольку это наиболее безопасное помещение во всем банном строении. Минимальное расстояние между полом и верхней частью щитка – 1,5 м. Лучше всего выводить кабеля от щитка через гофротрубу.
Важно! В обязательном порядке рядом со щитком должна быть размещена схема электрической проводки банного строения.
Внутренняя разводка
Чтобы правильно развести проводку внутри помещений, используется общая схема электрификации бани.
Выполняя разводку кабеля, необходимо соблюдать следующие требования:
- От щитка кабель ведется единым куском.
- На деревянных поверхностях проводка прокладывается открытым способом, т. н. ретропроводка. В качестве изоляции запрещается использование пластиковых и металлических труб.
- На кирпичных и шлакоблочных поверхностях проводка осуществляется скрытым способом с нанесением штукатурного слоя.
- Фиксация проводов проводится горизонтальными и вертикальными линиями, без изгибов и перекручивания.
- Провода не должны располагаться напротив входных дверей, отопительного оборудования и электроприборов.
- Для соединения токопроводящих жил используется сварочное или спаечное соединение.
Подключение электрофурнитуры
Сауна и баня – строения с особыми температурными режимами, поэтому розетки и выключатели оптимально расположить в предбаннике, комнате для отдыха и раздевалке на высоте до 95 см от уровня пола.
Использование электрофурнитуры и монтажных коробок во влажных помещениях запрещается. Это объясняется тем, что со временем излишки влаги конденсируются на поверхности устройства и могут стать причиной короткого замыкания.
Подключение розеток
Ни в коем случае нельзя размещать розетки в парной. Лучше всего отвести им отдельную зону в наиболее безопасном помещении, таком, как комната отдыха или тамбур. Уровень защиты розеток в бане должен быть не меньше IP44, наличие защитных крышек на них является преимуществом. Минимальная высота, на которой могут быть размещены розетки – 90 см.
Правила заземления
Для того, чтобы обеспечить полную безопасность для жизни и здоровья людей, находящихся в бане, необходимо обеспечить качественное заземление. Чтобы это сделать, необходимо подготовить провод с тремя медными жилами, первая из которых ноль, вторая – фаза, а третья – заземление.
Информация. Во избежание путаницы в проводах их обычно окрашивают в определенный цвет: ноль – синий, заземление – желто-зеленый, а фаза окрашивается в любой другой цвет. Это предусмотрено правилами электрики.
После того, как каждый из кабелей ввели в щиток, нужно провести провод заземления. Для этого он выводится на улицу и крепится к металлическому уголку, который после устанавливается в землю на глубину до 0,5 м. К уголку нужно прикрепить земляную шину щитка, к которой подключаются все клеммы заземления.
На сегодняшний день большинство бытовых приборов, которые мы используем, оборудованы заземлением. Убедиться в этом можно лишь посмотрев на вилку прибора, оснащенную специальной клеммой.
Меры предосторожности при выполнении проводки
- Все устройства и щитки должны быть расположены в отдельном помещении, которое надёжно защищено от влаги. В условиях чрезмерной влажности конструкции могут за короткий срок выйти из строя и проржаветь. Это касается и пластиковых приспособлений — внутри конструкций есть металлические элементы. Не стоит беспокоиться о современных моделях душевых кабин со встроенным подогревом воды. Изготовитель заботится о безопасности, поэтому такие устройства можно размещать и в моечной.
- Корпус осветительных приборов должен быть алюминиевым, а плафон — стеклянным. Монтировать их рекомендуется на стенках, так как под потолок уходит пар, в результате чего там устанавливается повышенная температура, которая неприемлема для подобных приспособлений.
- Трансформаторное устройство, к которому будет проведено напряжение питания, должно рассчитываться на 220 В. Его надо устанавливать в сухом месте. Сквозь стенку возможна проводка лишь 12 В. Если монтируются лампочки в 36 В, то допустимое напряжение составит 42 В. В парной рекомендуется устанавливать светильники на 12 В, а блоки питания для них размещать за стенкой, в других помещениях
- Если есть желание установить в парной машинку для стирки, то не стоит забывать о том, что она должна размещаться в сухом помещении. Понадобится сделать отдельный кабель для электронагревателя.
- Вокруг парилки следует проложить заземлительный контур. В щитке должен быть смонтирован автоматический выключатель или УЗО. Устройства должны располагаться в ёмкости, которая защищена от влаги.
- Если есть надобность в монтаже датчиков к электрической каменке, то следует знать, что они должны быть низковольтными и располагаться на расстоянии 1 м от напольного основания. Щит управления крепится за пределами парной. Каменка монтируется без розеток.
- В щитке рекомендуется обозначить все элементы маркером.
Распространенные ошибки при организации проводки
Часто начинающие мастера при электрификации бани совершают грубые ошибки, которые связаны с нарушением технических требований или неправильными расчетами.
Распространенные ошибки:
- Неправильный выбор типа электропровода и неверно рассчитанное его сечение.
- Неправильный выбор защитного оборудования – автоматов и УЗО.
- Плохая изоляция проводов в пожароопасных местах.
- Нарушение правил безопасности при укладке электропроводки.
Электрификация бани – сложный и ответственный процесс, требующий грамотного выбора расходных материалов, соблюдения технологии и схемы монтажа, правильного введения системы в эксплуатацию. Это является залогом безопасного и комфортного пребывания в бане на протяжении всего срока эксплуатации.
Рекомендации и советы профессионалов
Для установки кабелей в сухих помещениях можно использовать пластиковые короба, а во влажных рекомендуется применять трубы из полимерных материалов.
При монтаже кабелей следует ориентироваться на цвет изоляции жил или использовать отдельную маркировку бирками.
На этикетках наносят дополнительную информацию о назначении провода (например, для освещения или подключения нагревателя). Через клавишные выключатели должна проходить жила фазы, что позволяет безопасно менять лампы накаливания в плафонах.
По стандарту включение света должно происходить при установке тумблера в верхнее положение. Переходные гильзы в стенах необходимо заполнить негорючим материалом, снижающим риск пожара при повреждении проводки.
Для защиты плафонов от попадания влаги входной кабель закручивают петлей для стока конденсата. Подключение главного автомата производят после сборки проводки и проверки цепей тестовым прибором на замыкание.